THIẾT KẾ NỔI BẬT CỦA MÁNG CÁP LƯỚI BESTRAY
(Wire Mesh Cable Tray Inox 304)
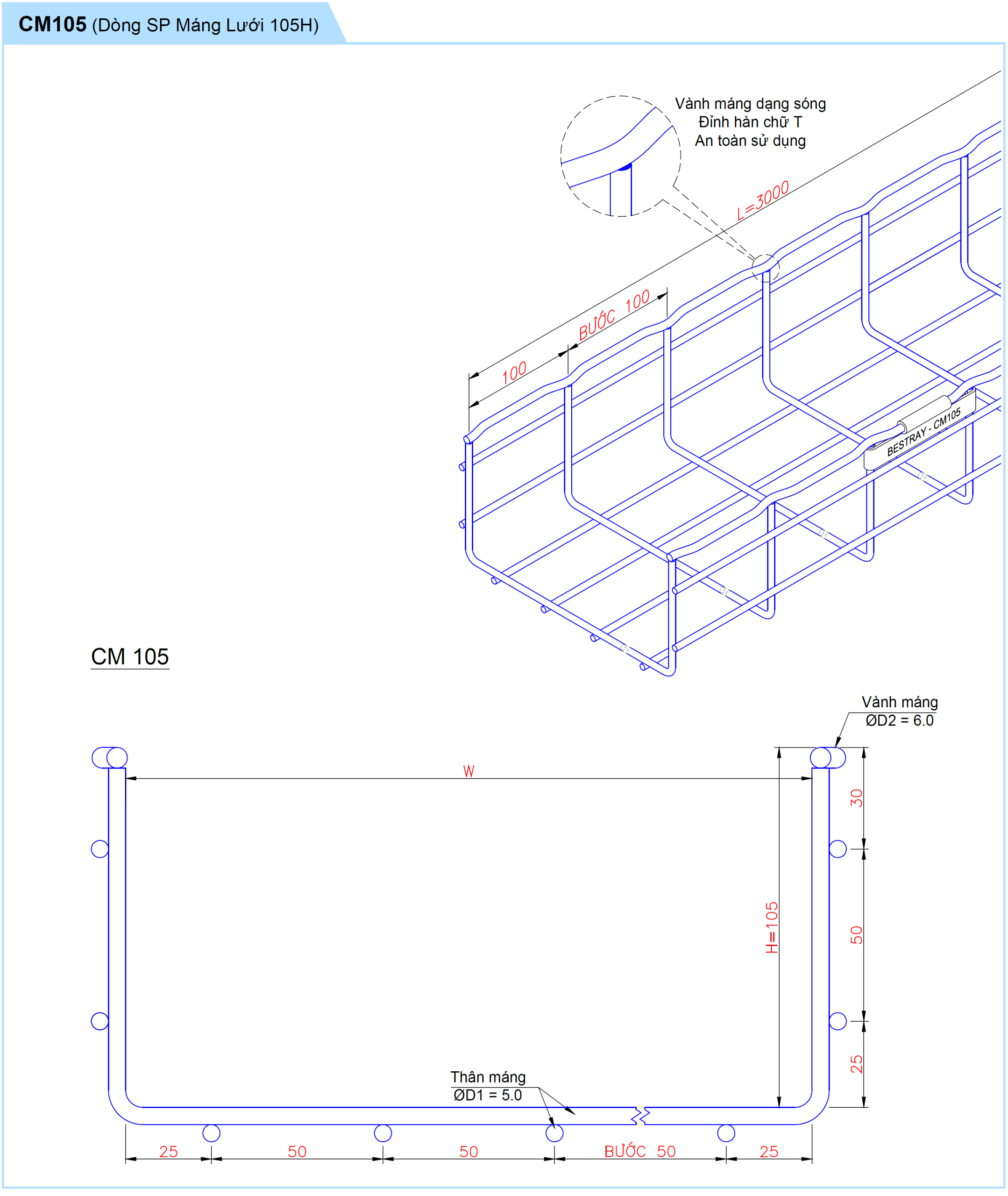
– Vành máng cáp lưới dạng “Sóng”, được thiết kế nhằm gia tăng độ cường độ cứng cho cấu trúc theo phương đứng và chống vặn xoắn theo phương ngang, giúp máng cáp lưới phát huy tối đa sức mạnh, nâng cao khả năng chịu tải (cao hơn vành thẳng)
– Láp vành máng cáp lưới lớn hơn lắp thân máng, giúp vành máng cáp lưới cứng cáp hơn ở tìa mép, nhìn cân đối và thẫm mỹ hơn
– Đỉnh hàn chữ “T”, giúp vành máng cáp lưới trơn nhẵn, an toan cho người lắp đặt cũng như tránh trầy xước và vướng cáp khi kéo
– Tem nhãn Bestray kiểu “3 Chấu” bằng nhựa PE màu vàng, chữ đen khắc laser
TÍNH NĂNG/ ƯU ĐIỂM MÁNG CÁP LƯỚI BESTRAY
(Wire Mesh Cable Tray Inox 304)
– Cứng cáp và nhẹ nhàng hơn máng cáp lưới truyền thống có cùng kích cỡ. Dễ dàng mang vác, đơn giản và thao tác lắp ráp nhanh. Giảm chi phí vật tư và nhân công
– Máng cáp lưới mang tính linh hoạt cao, dễ dàng luồn lách lắp đặt trong không gian đầu nối hẹp, tạo thẫm mỹ cao
– Với cấu trúc hở (dạng lưới) giúp cáp điện được giải nhiệt nhanh dọc suốt tuyến làm nâng cao hiệu suất làm việc. Đồng thời hạn chế bị bụi bẩn bám dính, động lại trên máng cáp lưới có thể tạo ra các vi sinh vật gây hại và ngăn ngựa chuột hay các côn trùng làm tổ
– Phụ kiện lắp đặt đầy đủ, luôn có sẵn, để phục vụ cho việc tự thao tác chế tạo, lắp ráp, cấu hình tại công trường.
– Phụ kiện co, tê… gia công sẵn, luôn có sẵn, sẵn sang cho việc lắp đặt theo kế hoạch, giúp tiết kiệm thời gian và chi phí
MÁNG CÁP LƯỚI PHỤ KIỆN CO, TÊ GIA CÔNG SẴN, SẴN SÀNG ĐỂ LẮP ĐẶT
(Wire Mesh Cable Tray Inox 304)
– Không Cần Cắt Hay Uống
– Không Cần Công Cụ Chuyên Dụng
– Không Cần Bản Hướng Dẫn Chế Tạo
– Chỉ Việc Lắp Đặt
– Không Tạo Ra Vật Tư Phế Liệu
– Tiết Kiệm Thời Gian Và Chi Phí
CÁC QUY ĐỊNH VÀ GIẤY PHÉP MÁNG CÁP LƯỚI BESTRAY
(Wire Mesh Cable Tray Inox 304)
1. Tiêu Chuẩn ISO 9001:2015
SẢN XUẤT MÁNG LƯỚI, MÁNG CÁP, THANG CÁP, KHAY CÁP, TỦ ĐIỆN, ỐC SIẾT CÁP VÀ THƯƠNG MẠI THIẾT BỊ ĐIỆN, ỐNG THÉP LUỒN DÂY ĐIỆN VÀ PHỤ KIỆN ỐNG
2. Tiêu Chuẩn UL (Underwriters Laboratories)
ĐƯỢC CHỨNG NHẬN VỀ CHẤT LƯỢNG QUY TRÌNH SẢN XUẤT VÀ SẢN PHẨM:
CYNW – MÁNG CÁP ĐIỆN KIM LOẠI
3. Tiêu Chuẩn CE (Conformité Européenne)
ĐƯỢC CHỨNG NHẬN VỀ CHẤT LƯỢNG QUY TRÌNH SẢN XUẤT VÀ SẢN PHẨM:
HỆ THỐNG MÁNG CÁP ĐIỆN
4. Tiêu Chuẩn NEMA VE1-2017/CSA C22.2 No 126.1
ĐƯỢC CHỨNG NHẬN VỀ CHẤT LƯỢNG QUY TRÌNH SẢN XUẤT VÀ SẢN PHẨM:
HỆ THỐNG THANG CÁP VÀ MÁNG CÁP
5. Tiêu Chuẩn IEC 61537:2006/ TCVN 10688:2015
ĐƯỢC CHỨNG NHẬN VỀ CHẤT LƯỢNG QUY TRÌNH SẢN XUẤT VÀ SẢN PHẨM:
HỆ THỐNG THANG CÁP VÀ MÁNG CÁP
| STT | Tên SP |
H (mm) |
W (mm) |
L (mm) |
Đường Kính Láp (mm) |
Trọng Lượng (kg/cây) |
Mã SP | ||||
|
Thân Máng ØD1 |
Vành Máng ØD2 |
S4 | HG | EG | PC | ||||||
| 1 | CM 105/100 | 105 | 100 | 3000 | 5.0 | 6.0 | 5.42 | CM1010S4 | CM1010HG | CM1010EG | CM1010PC |
| 2 | CM 105/150 | 105 | 150 | 3000 | 5.0 | 6.0 | 6.10 | CM1015S4 | CM1015HG | CM1015EG | CM1015PC |
| 3 | CM 105/200 | 105 | 200 | 3000 | 5.0 | 6.0 | 6.79 | CM1020S4 | CM1020HG | CM1020EG | CM1020PC |
| 4 | CM 105/300 | 105 | 300 | 3000 | 5.0 | 6.0 | 8.16 | CM1030S4 | CM1030HG | CM1030EG | CM1030PC |
| 5 | CM 105/400 | 105 | 400 | 3000 | 5.0 | 6.0 | 9.53 | CM1040S4 | CM1040HG | CM1040EG | CM1040PC |
| 6 | CM 105/450 | 105 | 450 | 3000 | 5.0 | 6.0 | 10.22 | CM1045S4 | CM1045HG | CM1045EG | CM1045PC |
| 7 | CM 105/500 | 105 | 500 | 3000 | 5.0 | 6.0 | 10.90 | CM1050S4 | CM1050HG | CM1050EG | CM1050PC |
| 8 | CM 105/600 | 105 | 600 | 3000 | 5.0 | 6.0 | 12.27 | CM1060S4 | CM1060HG | CM1060EG |
CM1060PC
|











