Máng Cáp Thẳng 150H

Thông tin nổi bật

Phân loại sản phẩm

Giới thiệu máng cáp Bestray

Máng cáp Bestray là giải pháp tối ưu trong hệ thống quản lý và bảo vệ cáp điện, cáp mạng trong các công trình công nghiệp và dân dụng. Với thiết kế chắc chắn, hiện đại và đa dạng kích thước, máng cáp Bestray giúp sắp xếp dây dẫn một cách gọn gàng, an toàn và dễ dàng bảo trì.

Sản phẩm được sản xuất từ thép mạ kẽm, thép sơn tĩnh điện hoặc inox, đảm bảo độ bền cao, khả năng chống ăn mòn và chịu lực tốt trong mọi điều kiện môi trường. Máng cáp Bestray còn nổi bật với tính thẩm mỹ cao, phù hợp với các công trình yêu cầu kỹ thuật và mỹ quan như nhà máy, tòa nhà văn phòng, trung tâm dữ liệu,…

Ưu điểm nổi bật:

  • Thi công nhanh chóng, dễ lắp đặt
  • Đảm bảo an toàn hệ thống điện
  • Dễ bảo trì và nâng cấp hệ thống cáp
  • Đa dạng mẫu mã: máng thẳng, co, ngã ba, ngã tư,…

Máng cáp Bestray – Giải pháp hoàn hảo cho hệ thống cơ điện hiện đại.

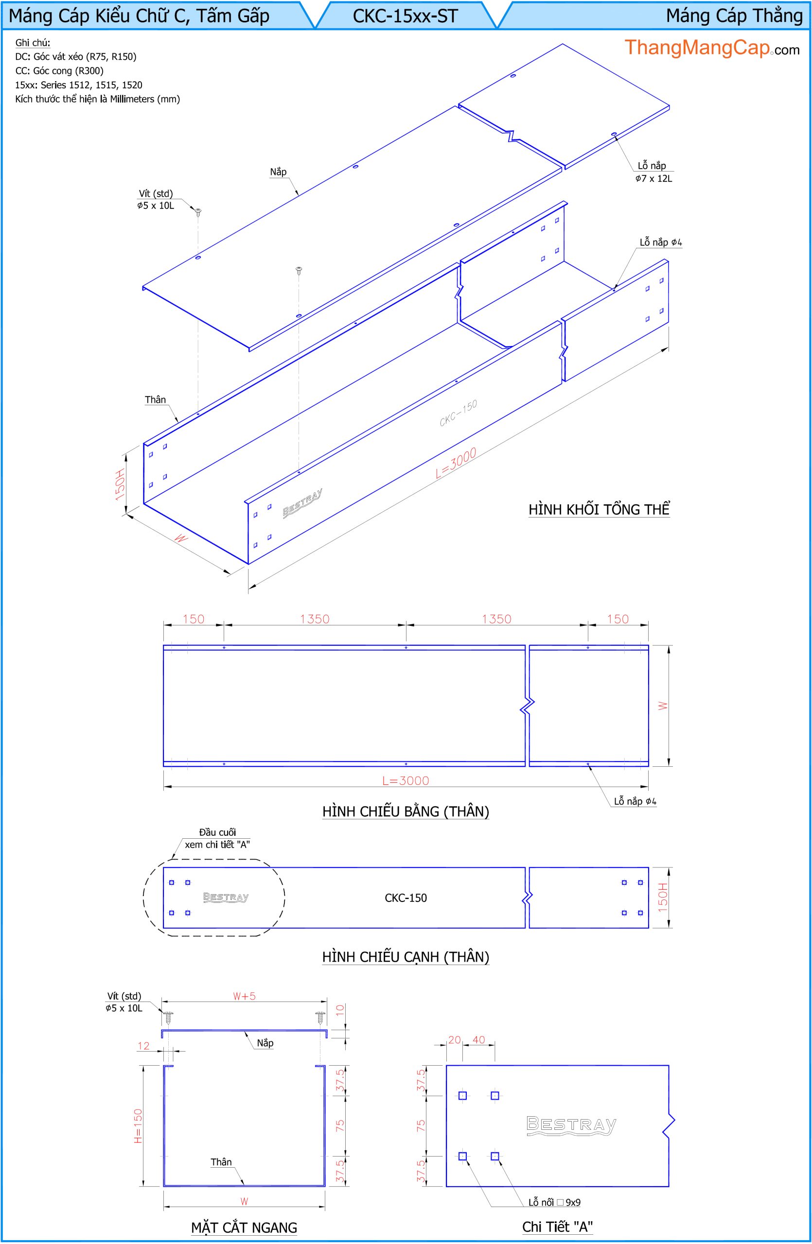
Bản vẽ

Mang-cap-CKC-VN-5

Diagram units

Qdop. (kN/m)
-
L (m)
-